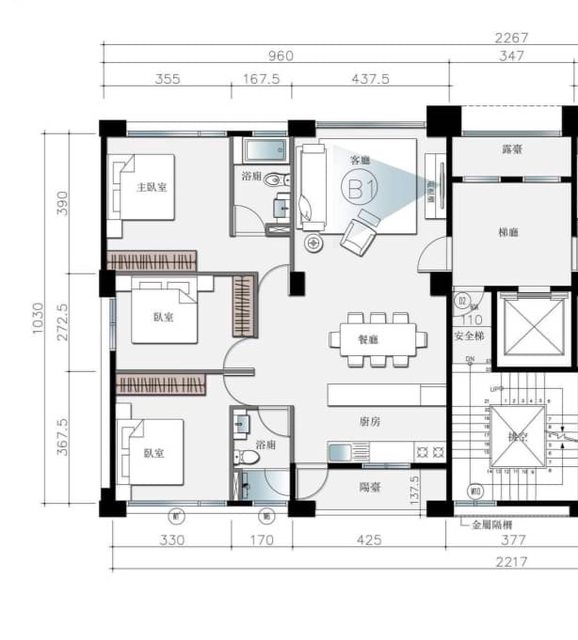
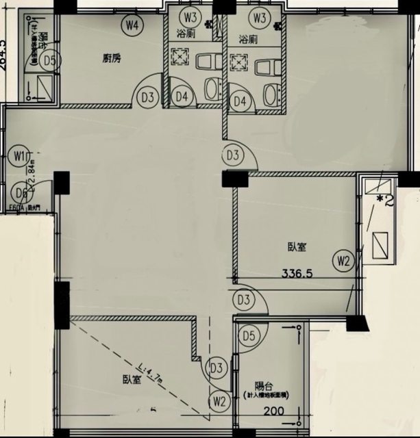
各位前輩好,因朋友沒有ptt帳號所以幫忙代po 想請教各位前輩以下四個格局圖,哪一個最優呢?想請教各有什麼優缺點,謝謝!! 1. https://i.imgur.com/Wguusbz.jpg
2. https://i.imgur.com/cIMZrhk.jpg
3. https://i.imgur.com/i9CZE0G.jpg
4. https://i.imgur.com/WxL33Rs.jpg
-- ※ 發信站: 批踢踢實業坊(ptt-club.com.tw), 來自: 42.77.179.255 (臺灣) ※ 文章網址: https://ptt-club.com.tw/home-sale/M.1702035494.A.AF0
fancyrex: 212/08 19:54
icexice: 2最差,1、3都不錯12/08 19:54
GiantChicken: 陽台出入真的少12/08 19:56
qqphor: 212/08 19:56
GiantChicken: 話說 2 不是真毽t廳嗎 還是我誤會什麼?12/08 20:03
Drither: 有沒有富二代要包養12/08 20:03
qqphor: 有窗戶'應該 天井,但還是要依週圍有沒有被建築物擋12/08 20:12
momomom: 1 3都可以 不要212/08 20:25
bustinjieber: 1 還可以 12/08 20:40
bustinjieber: 2 暗廳爛到笑 12/08 20:40
bustinjieber: 3 沒有廚房? 12/08 20:40
Notker: 身邊有朋友被包養 12/08 20:40
bustinjieber: 4 不錯,但是落塵區難規劃 12/08 20:40
scopeowl: 4 12/08 21:19
Smile365Day: 4 三面採光就80起跳 12/08 22:18
adapt: 3的廚房在哪裡 12/09 00:35
jones2011: 1 12/09 05:38
Peycere: 亞洲最大包養平台上線了 12/09 05:38
jones2011: 3的廚房應該是開放式靠左下牆 12/09 05:45
jones2011: 或是把左下的兩側短線連接,變成靠下方的廚房 12/09 05:47
jones2011: 反正3左下陽台應該才是工作陽台,但才1米寬?廢到笑 12/09 05:50