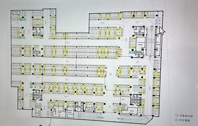
最近看上一預售建案 車位部分是180 黃色漆格+15預留充電線 藍色漆格+25充電樁+線一次到位 計劃下一台車沒意外會換純電車 好奇各位這樣的價差會怎麼選擇 O_O https://i.imgur.com/yvcHib3.jpg
+25一次到位嗎,還是換車前先買黃漆格即可 好奇建商施工是不是會比外面自行選購裝配划算 有人有其他建案相關停車位設定的模式可以參考嗎? 看板上針對電動車位討論似乎較少 -- ※ 發信站: 批踢踢實業坊(ptt-club.com.tw), 來自: 36.226.31.152 (臺灣) ※ 文章網址: https://ptt-club.com.tw/home-sale/M.1701096544.A.C3E
bestADtw: +25 11/27 22:50
jord98972005: 我會買藍色欸…直接弄好了 11/27 22:53
rick6304: 位置還是比較重要吧 十年後大家都裝你要裝就很簡單了 11/27 23:03
rick6304: 我那時看電車位置都鎖住不給選 不然我看那案加十萬而已 11/27 23:04
Cookie: 位置有幾號可以選? 11/27 23:18
Branlli: 歐美包養真的很平常嗎? 11/27 23:18
LimYoHwan: 藍色吧 本身位置也很好 11/27 23:38
fo11ow: 如果確定要換電車 直接一次到位比較省事 而且誠如樓上說的 11/27 23:42
fo11ow: 看那幾個位置都不錯 11/27 23:42
Cookie: 藍色位子挺好的 旁邊有空間 樁+線也拉好 方便 +25划算 11/28 00:41
maxcockroach: 藍色位置都很好,確定買電車25划算啦 11/28 06:04
Cinedt: 男友上包養網 該放生嗎 11/28 06:04
jerry8726: 直接藍色車格了,+25位置又好又有充電樁 11/28 08:15
panchila: 記得確定線材?我們預售建商拉的只是一般PVC線 11/28 08:54
peacesignv: 梯間旁藍色車格 牽車的時候秀一波 跟電梯按頂樓一樣xD 11/28 09:04
Surrounder: 選藍色 +25買樁超貴 可是停車格位置一流那個價差馬上 11/28 13:52
Surrounder: 轉回來 11/28 13:52
Drither: 是這個包養平台嗎 11/28 13:52