最近終於邁入找房的階段 目前有兩個格局在選擇(不同建案) 樓層都是看9樓 目前也是參考板上文章才篩選出來 想參考板上前輩先進的意見 讓買房新手參考參考(家中長輩對大樓不熟 https://i.imgur.com/SmJ2Mug.jpg
室內不含陽台 24 https://i.imgur.com/VRfKGrF.jpg
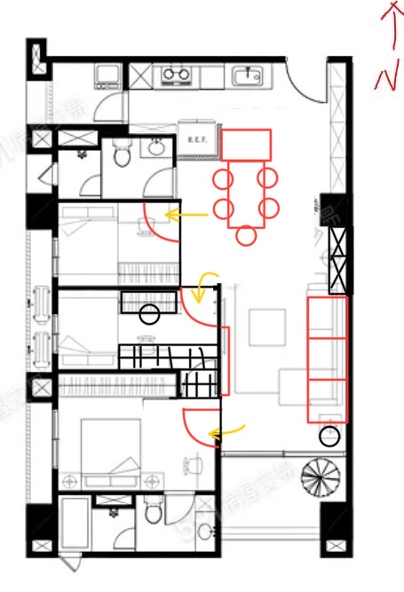
室內不含陽台 23 交通對我們都差不多 畢竟買了就不能說換就換 還請板上前輩給些寶貴意見參考 ----- Sent from JPTT on my iPhone -- ※ 發信站: 批踢踢實業坊(ptt-club.com.tw), 來自: 122.117.103.165 (臺灣) ※ 文章網址: https://ptt-club.com.tw/home-sale/M.1700542761.A.5A9
han0430: 忘記說,都無法客變了 11/21 13:00
zero781218: 1 11/21 13:02
yiliang1107: 兩個格局都很好 11/21 13:03
ck13579: 下面那個 11/21 13:03
yiliang1107: 1.完全無虛坪,坪效到極致 11/21 13:03
Merzario: 亞洲最大包養網上線啦 11/21 13:03
yiliang1107: 2.坪效也佳,公私領域分明 11/21 13:03
yiliang1107: 看自己生活習慣吧,1就是看電視或是待在公領域 11/21 13:04
yiliang1107: 房門可能會突然開啟XDDDD 11/21 13:05
benson502: 2,比較好 11/21 13:05
paul76318: 我個人選2,1的話不在意穿堂風很注重坪效可選 11/21 13:12
Muzaffer: 我哥上包養網被我抓包.. 11/21 13:12
akatsuki1022: 兩個都不錯,1的後陽台稍小,個人選2,喜歡公私有 11/21 13:14
akatsuki1022: 區隔的 11/21 13:14
dammbob: 我喜歡2雖然有走道但這動線比較舒服! 1好處是利用到極致 11/21 13:19
iceonly: 2還畫鋼琴出來有夠浮誇的 11/21 13:22
sagarain: 勉強選2 1的主臥床頭有管道 兩個的開窗面向要看你能不 11/21 13:34
MIJice: 有人包養過洋鬼子嗎 11/21 13:34
sagarain: 能接受 11/21 13:34
sagarain: 而且24隔到三房 你要拿尺寸評估到底怎麼用 11/21 13:35
tsia: 2的格局比較方正,生活動線會順一點 11/21 13:38
MGImpulse: 主臥:看喜不喜歡浴缸,床頭後面洗澡是否在意音量 11/21 13:55
cs123: 當有客人要上廁所時,1跟2明顯有差。一個會經過主臥門口一 11/21 14:09
SpyTime: 有錢人為啥都想包養 11/21 14:09
cs123: 個完全不會。 11/21 14:09
kumoneco: 秒選2,工作陽台夠大 11/21 14:11
tayatiffany: 2 11/21 14:13
yozn: 第2個有一間次臥 幾乎是暗房唷 11/21 14:21
carefree22: 2的廁所在最裡面,怎麼公私分明? 11/21 14:28
Toth: 有人被洋鬼子包養過嗎 11/21 14:28
fletcher5014: 1坪效無敵 11/21 14:40
atten: 1,客廳再往陽台移可以空出餐廳的位置,然後門口做玄關 11/21 14:42
bustinjieber: 1工作陽台小,但洗脫烘買下去就完事了, 11/21 14:51
bustinjieber: 1最大的問題在於餐桌位置不好, 11/21 14:51
bustinjieber: 餐桌動線離玄關跟廁所太近, 11/21 14:51
Asterix: 到底要多有錢才會想包養 11/21 14:51
bustinjieber: 而且因為那根柱子,所以無解。 11/21 14:51
bustinjieber: 2的話就看你在不在意客衛的位置, 11/21 14:51
bustinjieber: 家裡有別人使用/洗澡會吵到主臥。 11/21 14:51
undergarment: 1. 24坪>23坪 11/21 14:53
wseedw: 2 11/21 15:25
AdamShi: 閨蜜上包養網還推薦我... 11/21 15:25
wseedw: 1很像坐門口吃飯 11/21 15:25
una283: 1的西側如果還有其他大樓選1 11/21 15:52
anivia0428: 1廁所好遠 11/21 15:55
mickl8101: 1吧 沒有走廊 11/21 16:07
e73103999: 2很棒! 11/21 16:21
lezabo: 包養? 11/21 16:21
takosom: 如果是我,肯定選2 11/21 16:38
aa00788: 都好頂 兩間我都要了 11/21 16:44
mitsurogi: 公私領域有區隔無可避免就是會有一點走道,看在不在意 11/21 17:02
mitsurogi: 囉 11/21 17:02
genurso: 1的客廳面寬是多少,連電視櫃都擺不下 11/21 17:23
silberger: 現在包養網都這麼直接嗎 11/21 17:23
greatime: 2比較好 1一進門就是廚房水槽跟餐桌 11/21 17:34
idmaker: 2 11/21 17:51
clamperni: 慘 11/21 17:52
firesula: 兩間都不要 1.開放廚房2.虛坪走道 11/21 18:13
pointlin: 1的坪效超好,空間利用極致,三房都雙人床,建案地點也 11/21 19:02
xayile: 歐美包養真的很平常嗎? 11/21 19:02
pointlin: 好,我猜是惠丞大璽? 11/21 19:02
BWV846: 2格局比較好 但座向有點差 11/21 19:27
Rembrandt: 2的動線比較好 11/21 19:38
yulien2226: 2 11/21 20:33
AHsuanHsuan: 我選2 1讓人有莫名壓力 11/21 23:13
cazo: 男友上包養網 該放生嗎 11/21 23:13
chocolate514: 2完勝 11/21 23:33
TiggerLin: 個人不喜歡主臥在客廳旁 電視聲很吵 11/22 04:38
TiggerLin: *主臥的門 11/22 04:39
rayder: 1.穿堂 頭朝浴室。 選2吧 11/22 07:12
ck9731208: 2 11/22 08:24
izilo: 是這個包養平台嗎 11/22 08:24
trying10: 選2, 1是效坪好 但工作陽台小 主臥床頭後是管路間 睡 11/22 08:31
trying10: 眠怕影響到 11/22 08:31
s47vd48g: 1的工作陽台小,次臥窗外有室外機,2找不到室外機預設 11/22 08:55
s47vd48g: 放哪裡 11/22 08:55
s47vd48g: 建議:思考需不需要浴缸是重點。 11/22 08:56
SEDAP: 交男友跟包養有什麼差別 11/22 08:56
s47vd48g: 我個人喜歡工作陽台大一點,不需要浴缸 11/22 08:56
yozn: https://i.imgur.com/RnnrvTl.jpg 11/22 11:18
kgkg0057: 2不悔... 11/22 12:41
sagarain: 2的室外機在右下角吧 上下 11/22 12:42
kobe7785075: 2的缺點是客臥對工作陽台 不過格局比較好 1的客廳卡 11/22 14:21
TUZom: 包養網到底在紅什麼? 11/22 14:21
kobe7785075: 到房門 11/22 14:21
outspoken123: 選2無懸念 11/22 16:19
petitebabe: 2有玄關 我比較喜歡 11/22 16:24
petitebabe: 1的後陽台太小 很難用 11/22 16:25